Due to the health concerns created by Coronavirus we are offering personal 1-1 online video walkthough tours where possible.




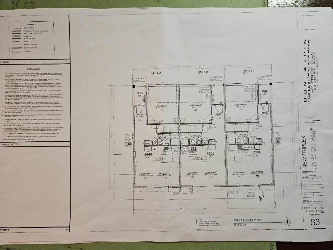
DEVELOPER OPPORTUNITYUsing 3 existing Walls' & Slab for the new construction of a (3) Three Unit (2) two story, 1760 square feet, gross plans, negotiable, Townhomes with attached Garages.WILLING TO SELL PROPERTY TO DEVELOPERThe plans that we have on the site is a sample of what can be done on the property.You would be pulling the permit for the City of Fort Lauderdale.I am a Structural Engineer, that can do all the plans for the City, plus the demo plans DEVELOPER OPPORTUNITYUsing 3 existing Walls' & Slab for the new construction of a (3) Three Unit (2) two story, 1760 square feet, gross plans, negotiable, Townhomes with attached Garages.WILLING TO SELL PROPERTY TO DEVELOPERThe plans that we have on the site is a sample of what can be done on the property.You would be pulling the permit for the City of Fort Lauderdale.I am a Structural Engineer, that can do all the plans for the City, plus the demo plans
| 12 months ago | Listing first seen on site | |
| 12 months ago | Listing updated with changes from the MLS® |

Did you know? You can invite friends and family to your search. They can join your search, rate and discuss listings with you.