Due to the health concerns created by Coronavirus we are offering personal 1-1 online video walkthough tours where possible.




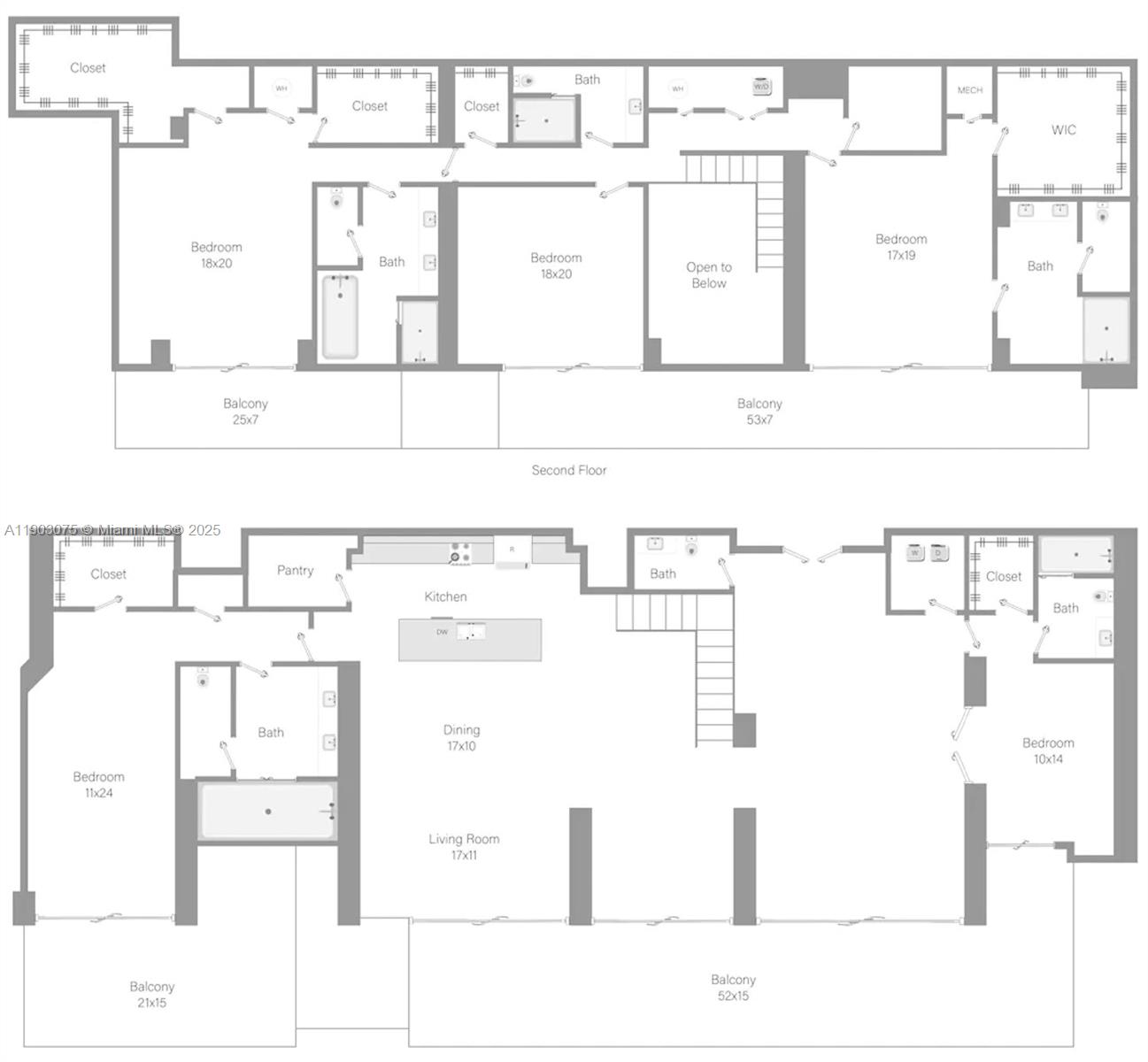
Introducing one of the largest two-story penthouses in Edgewater - over 4,600 sq ft with 4 bedrooms + Den and 5.5 bathrooms. This modern residence offers a two story open floor plan with large room sizes, oversized closets, and ample storage throughout. Enjoy exceptional outdoor living with massive terraces featuring custom turf, ideal for dining, lounging, and entertaining. Located at The Hamilton, residents enjoy a bayfront resort-style pool, full spa with sauna, steam room, and salt room, plus tennis, pickleball, basketball, putting greens, golf practice net, dog park, co-working lounge, and kids’ room. Prime Edgewater location close to Design District, Wynwood, Brickell, and Miami Beach.
| 3 days ago | Listing first seen on site | |
| 3 days ago | Listing updated with changes from the MLS® |

Did you know? You can invite friends and family to your search. They can join your search, rate and discuss listings with you.