Due to the health concerns created by Coronavirus we are offering personal 1-1 online video walkthough tours where possible.




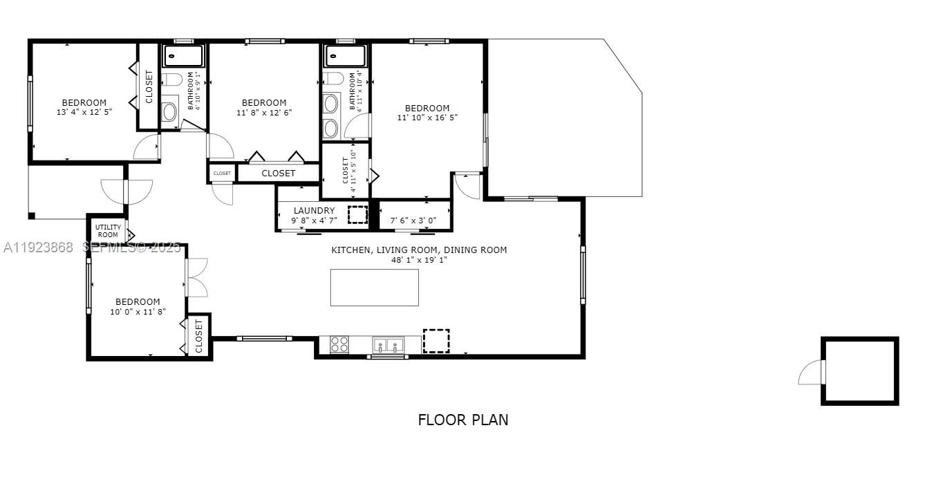
Modern beautiful and spacious home, perfect for a large family to move in! Brand new roof, new beautiful tiled floor throughout, impact windows and doors, freshly landscaped, painted & completely remodeled. Top of the line brands, appliances, and best products. All large bedrooms, the Home has the "open floor concept" with lots of natural lighting, ample kitchen includes Quartz countertops with a big "waterfall" island countertop & glossy white cabinets. Master features a walk-in closet, bathroom with dual sink, shower with glass sliding doors & doors to your beautiful backyard. Tiled open terrace, fenced Backyard with storage shed. Quality zebra blinds throughout. Fantastic location, in an excellent, quiet neighborhood, walking distance to AD Barnes Park, restaurants, brewery, shopping center, & Starbucks!
| yesterday | Price changed to $880,000 | |
| yesterday | Listing updated with changes from the MLS® | |
| a month ago | Status changed to Active | |
| a month ago | Listing first seen on site |

Did you know? You can invite friends and family to your search. They can join your search, rate and discuss listings with you.